Поиск

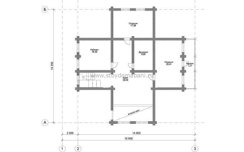
Дом RD-25 (14,35x16,8)

Детали

Размер дома
16.8 × 14.35 м
Площадь проекта
254 кв.м
Количество этажей
2
Стоимость проекта
29990 Р
Материал
Оцилиндрованное бревно

Рассчитать цену строительства дома

В стоимость строительства входит все, что нужно для изготовления фундамента, стен, перекрытий и кровли (кроме доставки комплекта стен на участок и обработки огне-био защитой).

Стены
1 537 146 Р
Монтаж стен
939 367 Р
Фундамент
187 500 Р
Кровля
282 000 Р

2 946 013 Р

    Отправляя свои данные, вы соглашаетесь на обработку персональных данных в соответствии с Политикой Конфиденциальности




      Отправляя свои данные, вы соглашаетесь на обработку персональных данных в соответствии с Политикой Конфиденциальности

      Остались вопросы?

      Свяжитесь с нами по телефонам:

      (8-800-707-17-16)

      (8-960-573-84-84)

      Или напишите на почту: