Поиск

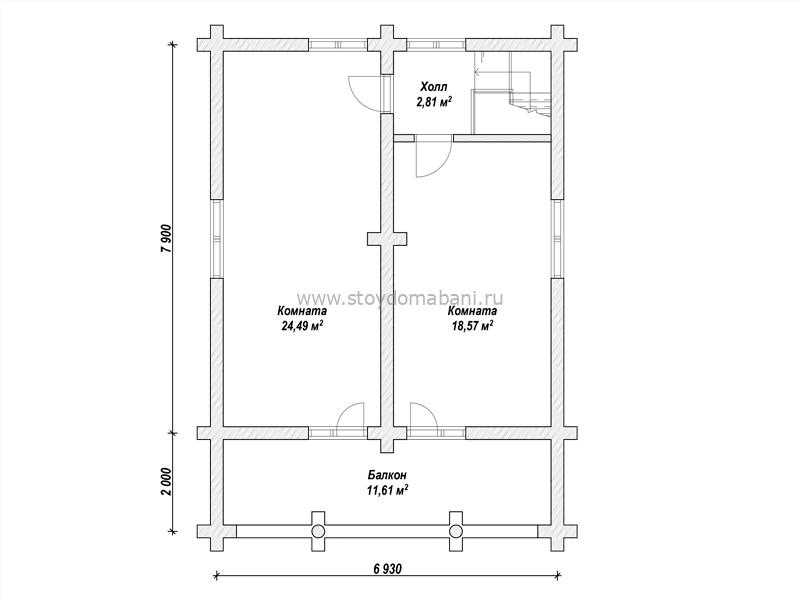
Дом RDM-6-3 (7,9x6,93)

Детали

Размер дома
6.93 × 7.9 м
Площадь проекта
100 кв.м
Количество этажей
2
Стоимость проекта
21440 Р
Материал
Бревно рубленое

Рассчитать цену строительства дома

В стоимость строительства входит все, что нужно для изготовления фундамента, стен, перекрытий и кровли (кроме доставки комплекта стен на участок и обработки огне-био защитой).

Стены
997 500 Р
Монтаж стен
472 500 Р
Фундамент
67 500 Р
Кровля
140 000 Р

1 677 500 Р

    Отправляя свои данные, вы соглашаетесь на обработку персональных данных в соответствии с Политикой Конфиденциальности




      Отправляя свои данные, вы соглашаетесь на обработку персональных данных в соответствии с Политикой Конфиденциальности

      Остались вопросы?

      Свяжитесь с нами по телефонам:

      (8-800-707-17-16)

      (8-960-573-84-84)

      Или напишите на почту: