Поиск

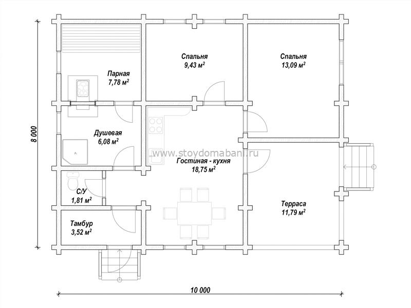
Баня C-98 (10х8)

Детали

Размер дома
0 × 10 м
Площадь проекта
72 кв.м
Количество этажей
1
Стоимость проекта
18300 Р
Материал
Брус клееный

Рассчитать цену строительства дома

В стоимость строительства входит все, что нужно для изготовления фундамента, стен, перекрытий и кровли (кроме доставки комплекта стен на участок и обработки огне-био защитой).

Стены
920 000 Р
Монтаж стен
228 000 Р
Фундамент
103 500 Р
Кровля
134 000 Р

1 385 500 Р

    Отправляя свои данные, вы соглашаетесь на обработку персональных данных в соответствии с Политикой Конфиденциальности




      Отправляя свои данные, вы соглашаетесь на обработку персональных данных в соответствии с Политикой Конфиденциальности

      Остались вопросы?

      Свяжитесь с нами по телефонам:

      (8-800-707-17-16)

      (8-960-573-84-84)

      Или напишите на почту: