Поиск

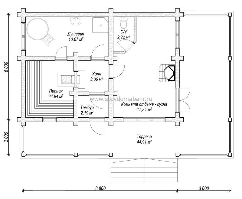
Баня C-18 (8x11,8)

Детали

Размер дома
11.8 × 8 м
Площадь проекта
89 кв.м
Количество этажей
1
Стоимость проекта
18300 Р
Материал
Бревно рубленое

Рассчитать цену строительства дома

В стоимость строительства входит все, что нужно для изготовления фундамента, стен, перекрытий и кровли (кроме доставки комплекта стен на участок и обработки огне-био защитой).

Стены
741 000 Р
Монтаж стен
351 000 Р
Фундамент
117 000 Р
Кровля
160 000 Р

1 369 000 Р

    Отправляя свои данные, вы соглашаетесь на обработку персональных данных в соответствии с Политикой Конфиденциальности




      Отправляя свои данные, вы соглашаетесь на обработку персональных данных в соответствии с Политикой Конфиденциальности

      Остались вопросы?

      Свяжитесь с нами по телефонам:

      (8-800-707-17-16)

      (8-960-573-84-84)

      Или напишите на почту: