Поиск

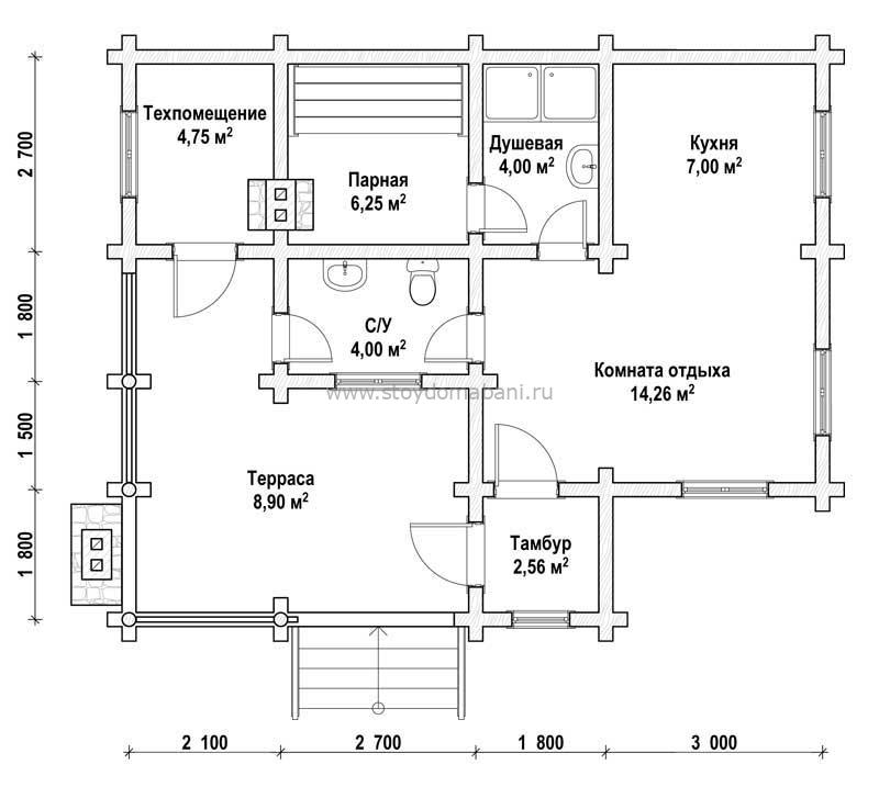
Баня C-11 (7,8x9,6)

Детали

Размер дома
9.6 × 7.8 м
Площадь проекта
60 кв.м
Количество этажей
1
Стоимость проекта
18300 Р
Материал
Брус профилированный

Рассчитать цену строительства дома

В стоимость строительства входит все, что нужно для изготовления фундамента, стен, перекрытий и кровли (кроме доставки комплекта стен на участок и обработки огне-био защитой).

Стены
747 300 Р
Монтаж стен
302 100 Р
Фундамент
91 500 Р
Кровля
126 000 Р

1 266 900 Р

    Отправляя свои данные, вы соглашаетесь на обработку персональных данных в соответствии с Политикой Конфиденциальности




      Отправляя свои данные, вы соглашаетесь на обработку персональных данных в соответствии с Политикой Конфиденциальности

      Остались вопросы?

      Свяжитесь с нами по телефонам:

      (8-800-707-17-16)

      (8-960-573-84-84)

      Или напишите на почту: