Поиск

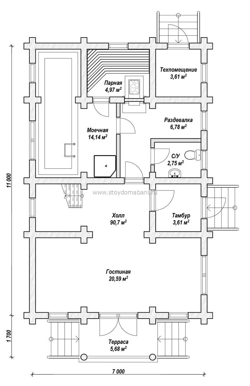
Баня B-9 (12,7x7)

Детали

Размер дома
7 × 12.7 м
Площадь проекта
112 кв.м
Количество этажей
2
Стоимость проекта
21440 Р
Материал
Бревно рубленое

Рассчитать цену строительства дома

В стоимость строительства входит все, что нужно для изготовления фундамента, стен, перекрытий и кровли (кроме доставки комплекта стен на участок и обработки огне-био защитой).

Стены
1 268 250 Р
Монтаж стен
600 750 Р
Фундамент
109 500 Р
Кровля
172 000 Р

2 150 500 Р

    Отправляя свои данные, вы соглашаетесь на обработку персональных данных в соответствии с Политикой Конфиденциальности




      Отправляя свои данные, вы соглашаетесь на обработку персональных данных в соответствии с Политикой Конфиденциальности

      Остались вопросы?

      Свяжитесь с нами по телефонам:

      (8-800-707-17-16)

      (8-960-573-84-84)

      Или напишите на почту: