Поиск

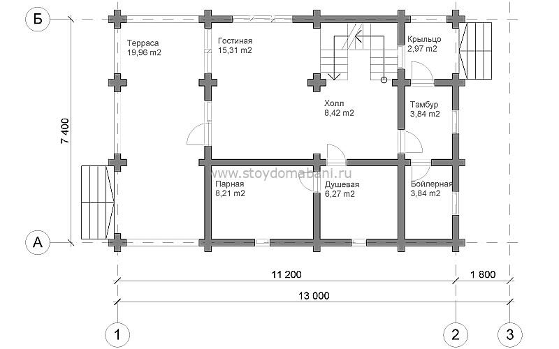
Баня B-17 (7,4x13)

Детали

Размер дома
13 × 7.4 м
Площадь проекта
131 кв.м
Количество этажей
2
Стоимость проекта
21440 Р
Материал
Оцилиндрованное бревно

Рассчитать цену строительства дома

В стоимость строительства входит все, что нужно для изготовления фундамента, стен, перекрытий и кровли (кроме доставки комплекта стен на участок и обработки огне-био защитой).

Стены
711 000 Р
Монтаж стен
434 500 Р
Фундамент
111 000 Р
Кровля
163 000 Р

1 419 500 Р

    Отправляя свои данные, вы соглашаетесь на обработку персональных данных в соответствии с Политикой Конфиденциальности




      Отправляя свои данные, вы соглашаетесь на обработку персональных данных в соответствии с Политикой Конфиденциальности

      Остались вопросы?

      Свяжитесь с нами по телефонам:

      (8-800-707-17-16)

      (8-960-573-84-84)

      Или напишите на почту: