Поиск

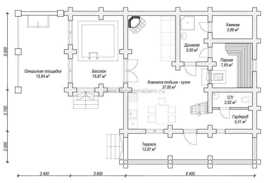
Баня B-31-4 (9,7x15,6)

Детали

Размер дома
15.6 × 9.7 м
Площадь проекта
131 кв.м
Количество этажей
2
Стоимость проекта
21440 Р
Материал
Оцилиндрованное бревно

Рассчитать цену строительства дома

В стоимость строительства входит все, что нужно для изготовления фундамента, стен, перекрытий и кровли (кроме доставки комплекта стен на участок и обработки огне-био защитой).

Стены
849 889 Р
Монтаж стен
519 377 Р
Фундамент
142 500 Р
Кровля
222 000 Р

1 733 766 Р

    Отправляя свои данные, вы соглашаетесь на обработку персональных данных в соответствии с Политикой Конфиденциальности




      Отправляя свои данные, вы соглашаетесь на обработку персональных данных в соответствии с Политикой Конфиденциальности

      Остались вопросы?

      Свяжитесь с нами по телефонам:

      (8-800-707-17-16)

      (8-960-573-84-84)

      Или напишите на почту: