Поиск

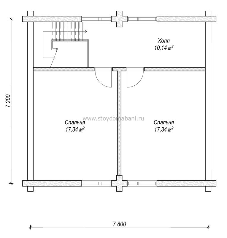
Баня C-24 (7,2x7,8)

Детали

Размер дома
7.8 × 7.2 м
Площадь проекта
92 кв.м
Количество этажей
2
Стоимость проекта
18300 Р
Материал
Бревно рубленое

Рассчитать цену строительства дома

В стоимость строительства входит все, что нужно для изготовления фундамента, стен, перекрытий и кровли (кроме доставки комплекта стен на участок и обработки огне-био защитой).

Стены
678 300 Р
Монтаж стен
321 300 Р
Фундамент
81 000 Р
Кровля
115 000 Р

1 195 600 Р

    Отправляя свои данные, вы соглашаетесь на обработку персональных данных в соответствии с Политикой Конфиденциальности




      Отправляя свои данные, вы соглашаетесь на обработку персональных данных в соответствии с Политикой Конфиденциальности

      Остались вопросы?

      Свяжитесь с нами по телефонам:

      (8-800-707-17-16)

      (8-960-573-84-84)

      Или напишите на почту: