Поиск

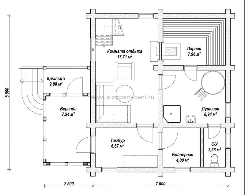
Баня B-11 (8x9,5)

Детали

Размер дома
9.5 × 8 м
Площадь проекта
108 кв.м
Количество этажей
2
Стоимость проекта
21440 Р
Материал
Бревно рубленое

Рассчитать цену строительства дома

В стоимость строительства входит все, что нужно для изготовления фундамента, стен, перекрытий и кровли (кроме доставки комплекта стен на участок и обработки огне-био защитой).

Стены
644 100 Р
Монтаж стен
305 100 Р
Фундамент
90 000 Р
Кровля
125 000 Р

1 164 200 Р

    Отправляя свои данные, вы соглашаетесь на обработку персональных данных в соответствии с Политикой Конфиденциальности




      Отправляя свои данные, вы соглашаетесь на обработку персональных данных в соответствии с Политикой Конфиденциальности

      Остались вопросы?

      Свяжитесь с нами по телефонам:

      (8-800-707-17-16)

      (8-960-573-84-84)

      Или напишите на почту: