Поиск

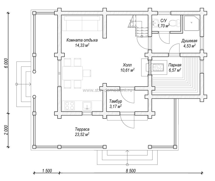
Баня C-23 (8x10)

Детали

Размер дома
10 × 8 м
Площадь проекта
89 кв.м
Количество этажей
2
Стоимость проекта
18300 Р
Материал
Брус клееный

Рассчитать цену строительства дома

В стоимость строительства входит все, что нужно для изготовления фундамента, стен, перекрытий и кровли (кроме доставки комплекта стен на участок и обработки огне-био защитой).

Стены
1 380 000 Р
Монтаж стен
342 000 Р
Фундамент
91 500 Р
Кровля
148 000 Р

1 961 500 Р

    Отправляя свои данные, вы соглашаетесь на обработку персональных данных в соответствии с Политикой Конфиденциальности




      Отправляя свои данные, вы соглашаетесь на обработку персональных данных в соответствии с Политикой Конфиденциальности

      Остались вопросы?

      Свяжитесь с нами по телефонам:

      (8-800-707-17-16)

      (8-960-573-84-84)

      Или напишите на почту: