Поиск

Скидка на проект дома RDM-78 (9,5x8) (103 кв.м.) со скидкой в 25%. С 17 по 31 января 2017г.

Акция действует только с 17 по 31 января 2017г.

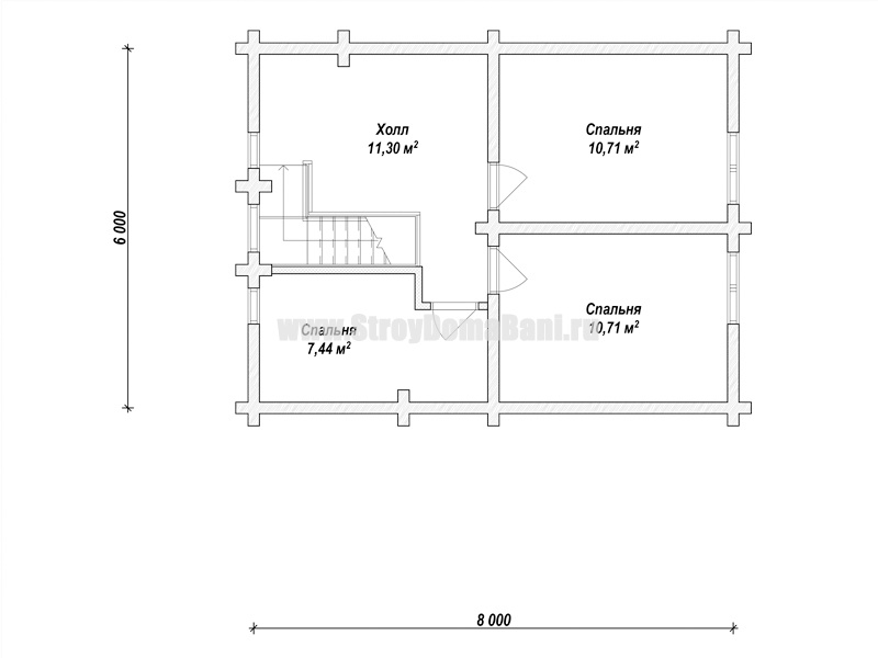
RDM-78 (9,5x8) (103 кв.м.)

Стоимость проекта 21 440 руб - 25%= 16 080 руб

    Отправляя свои данные, вы соглашаетесь на обработку персональных данных в соответствии с Политикой Конфиденциальности




      Отправляя свои данные, вы соглашаетесь на обработку персональных данных в соответствии с Политикой Конфиденциальности

      Остались вопросы?

      Свяжитесь с нами по телефонам:

      (8-800-707-17-16)

      (8-960-573-84-84)

      Или напишите на почту: