Поиск

Дом RDM-78 (9,5x8)

Детали

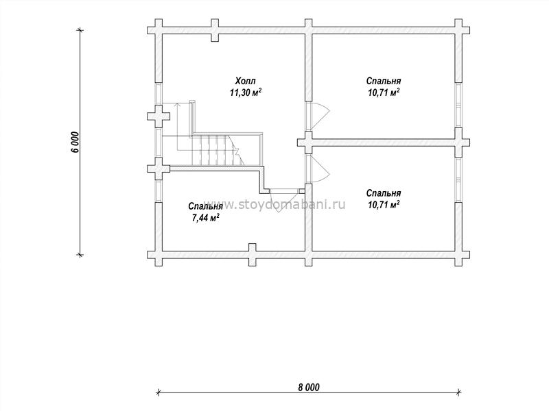
Размер дома
8 × 9.5 м
Площадь проекта
103 кв.м
Количество этажей
2
Стоимость проекта
21440 Р
Материал
Брус профилированный

Рассчитать цену строительства дома

В стоимость строительства входит все, что нужно для изготовления фундамента, стен, перекрытий и кровли (кроме доставки комплекта стен на участок и обработки огне-био защитой).

Стены
549 000 Р
Монтаж стен
378 200 Р
Фундамент
84 000 Р
Кровля
140 000 Р

1 151 200 Р

    Отправляя свои данные, вы соглашаетесь на обработку персональных данных в соответствии с Политикой Конфиденциальности




      Отправляя свои данные, вы соглашаетесь на обработку персональных данных в соответствии с Политикой Конфиденциальности

      Остались вопросы?

      Свяжитесь с нами по телефонам:

      (8-800-707-17-16)

      (8-960-573-84-84)

      Или напишите на почту: