Поиск

Скидка на проект бани C-98 со скидкой в 30%. С 01 по 15 февраля 2017г.

Акция действует только с 01 по 15 февраля 2017г.

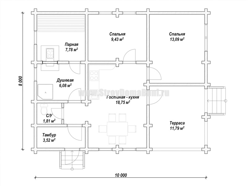
C-98 (10х8) (72 кв.м.)

Стоимость проекта 18 300 руб - 30%= 12 810 руб

    Отправляя свои данные, вы соглашаетесь на обработку персональных данных в соответствии с Политикой Конфиденциальности




      Отправляя свои данные, вы соглашаетесь на обработку персональных данных в соответствии с Политикой Конфиденциальности

      Остались вопросы?

      Свяжитесь с нами по телефонам:

      (8-800-707-17-16)

      (8-960-573-84-84)

      Или напишите на почту: