Поиск

Скидка на проект бани C-23 (8x10) (89 кв.м.) со скидкой в 17%. С 20 декабря по 09 января 2017г.

Акция действует только с 20 декабря по 09 января 2017г.

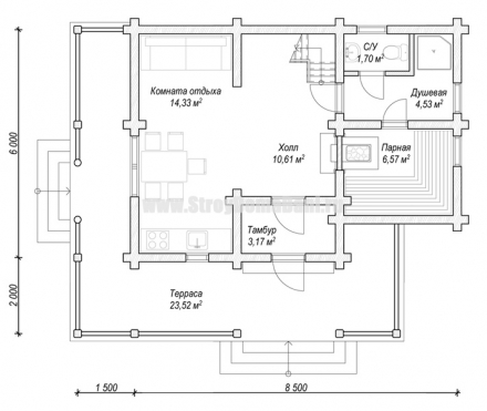
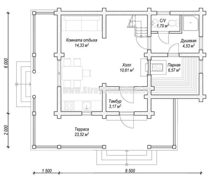
C-23 (8x10) (89 кв.м.)

Стоимость проекта 18 300 руб - 17%= 15 189 руб

    Отправляя свои данные, вы соглашаетесь на обработку персональных данных в соответствии с Политикой Конфиденциальности




      Отправляя свои данные, вы соглашаетесь на обработку персональных данных в соответствии с Политикой Конфиденциальности

      Остались вопросы?

      Свяжитесь с нами по телефонам:

      (8-800-707-17-16)

      (8-960-573-84-84)

      Или напишите на почту: