Поиск

Пример проекта деревянной беседки

Скачать Архитектурный раздел (АР) (5,5 Mb).
Скачать Конструктивный раздел (КР) (6,0 Mb).

Скачать Разбрусовку (3,7 Mb).

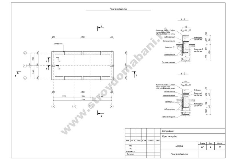
Архитектурный раздел (АР)

Конструктивный раздел (КР)

    Отправляя свои данные, вы соглашаетесь на обработку персональных данных в соответствии с Политикой Конфиденциальности




      Отправляя свои данные, вы соглашаетесь на обработку персональных данных в соответствии с Политикой Конфиденциальности

      Остались вопросы?

      Свяжитесь с нами по телефонам:

      (8-800-707-17-16)

      (8-960-573-84-84)

      Или напишите на почту: