Поиск

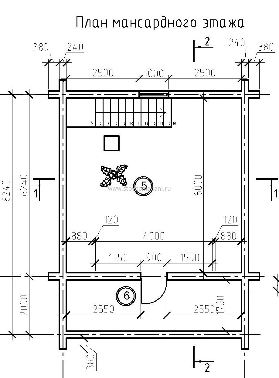
Дом RDM-64 (8,24x6,24)

Детали

Размер дома
6.24 × 8.24 м
Площадь проекта
87 кв.м
Количество этажей
2
Стоимость проекта
18300 Р
Материал
Бревно рубленое

Рассчитать цену строительства дома

В стоимость строительства входит все, что нужно для изготовления фундамента, стен, перекрытий и кровли (кроме доставки комплекта стен на участок и обработки огне-био защитой).

Стены
535 800 Р
Монтаж стен
253 800 Р
Фундамент
60 000 Р
Кровля
107 000 Р

956 600 Р

    Отправляя свои данные, вы соглашаетесь на обработку персональных данных в соответствии с Политикой Конфиденциальности




      Отправляя свои данные, вы соглашаетесь на обработку персональных данных в соответствии с Политикой Конфиденциальности

      Остались вопросы?

      Свяжитесь с нами по телефонам:

      (8-800-707-17-16)

      (8-960-573-84-84)

      Или напишите на почту: