Поиск

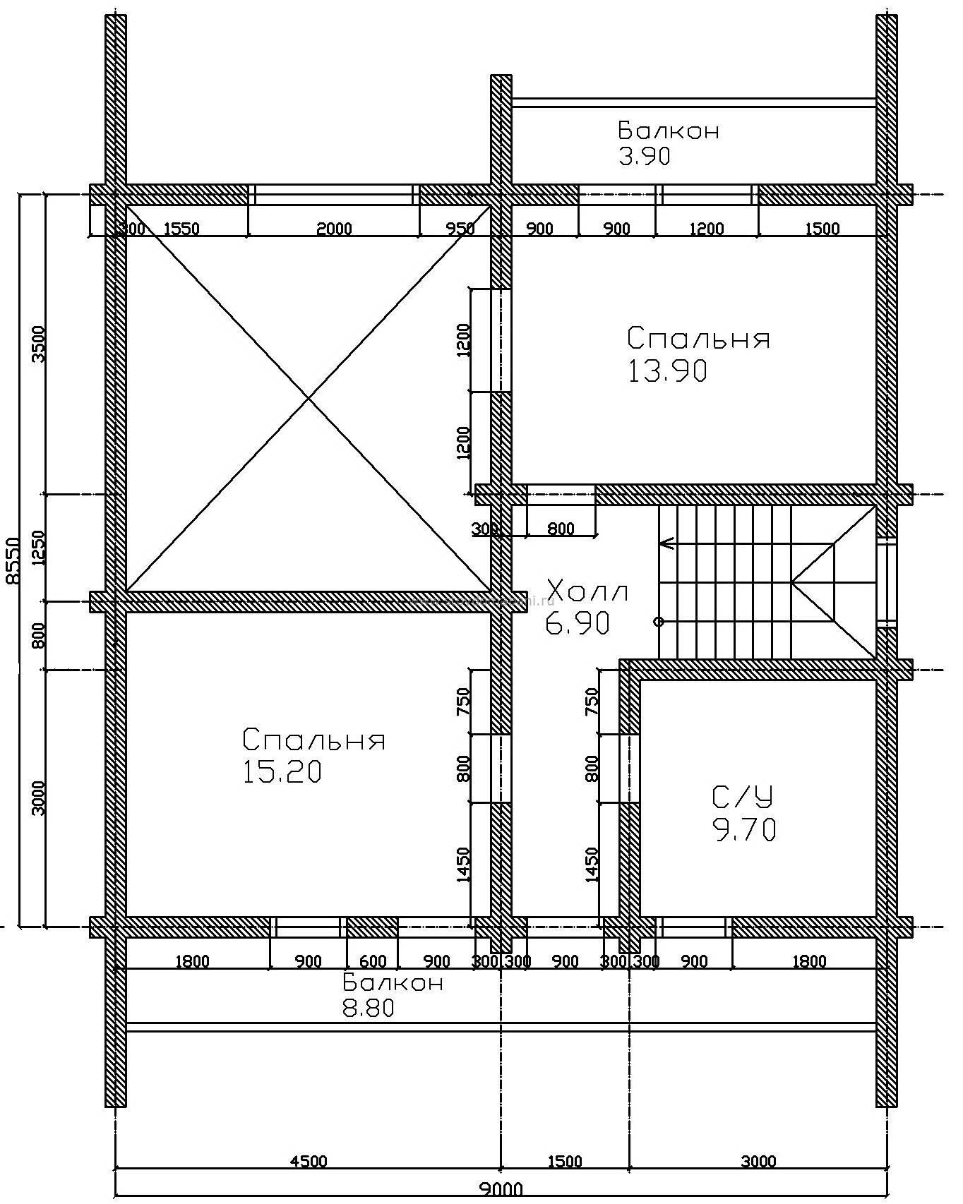
Дом RDM-62 (8,55x12,2)

Детали

Размер дома
12.2 × 8.55 м
Площадь проекта
135 кв.м
Количество этажей
2
Стоимость проекта
21440 Р
Материал
Бревно рубленое

Рассчитать цену строительства дома

В стоимость строительства входит все, что нужно для изготовления фундамента, стен, перекрытий и кровли (кроме доставки комплекта стен на участок и обработки огне-био защитой).

Стены
1 225 500 Р
Монтаж стен
580 500 Р
Фундамент
114 000 Р
Кровля
180 000 Р

2 100 000 Р

    Отправляя свои данные, вы соглашаетесь на обработку персональных данных в соответствии с Политикой Конфиденциальности




      Отправляя свои данные, вы соглашаетесь на обработку персональных данных в соответствии с Политикой Конфиденциальности

      Остались вопросы?

      Свяжитесь с нами по телефонам:

      (8-800-707-17-16)

      (8-960-573-84-84)

      Или напишите на почту: