Поиск

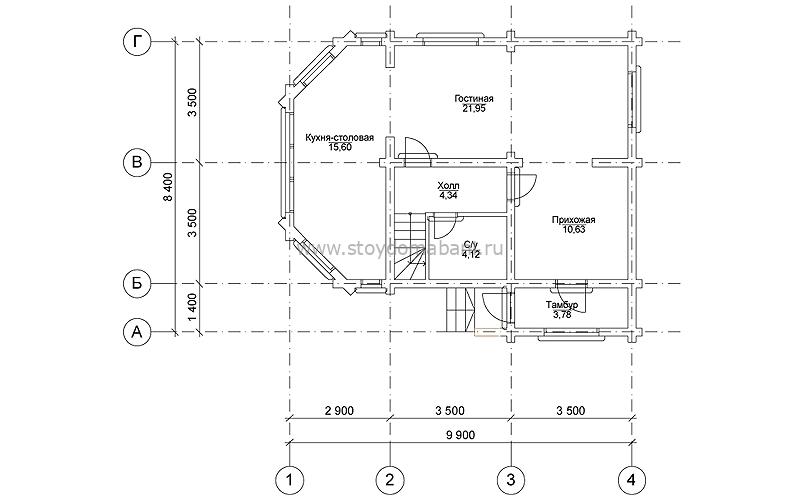
Дом RDM-16 (8,4x9,9)

Детали

Размер дома
9.9 × 8.4 м
Площадь проекта
101 кв.м
Количество этажей
2
Стоимость проекта
21440 Р
Материал
Оцилиндрованное бревно

Рассчитать цену строительства дома

В стоимость строительства входит все, что нужно для изготовления фундамента, стен, перекрытий и кровли (кроме доставки комплекта стен на участок и обработки огне-био защитой).

Стены
531 000 Р
Монтаж стен
324 500 Р
Фундамент
88 500 Р
Кровля
150 000 Р

1 094 000 Р

    Отправляя свои данные, вы соглашаетесь на обработку персональных данных в соответствии с Политикой Конфиденциальности




      Отправляя свои данные, вы соглашаетесь на обработку персональных данных в соответствии с Политикой Конфиденциальности

      Остались вопросы?

      Свяжитесь с нами по телефонам:

      (8-800-707-17-16)

      (8-960-573-84-84)

      Или напишите на почту: