Поиск

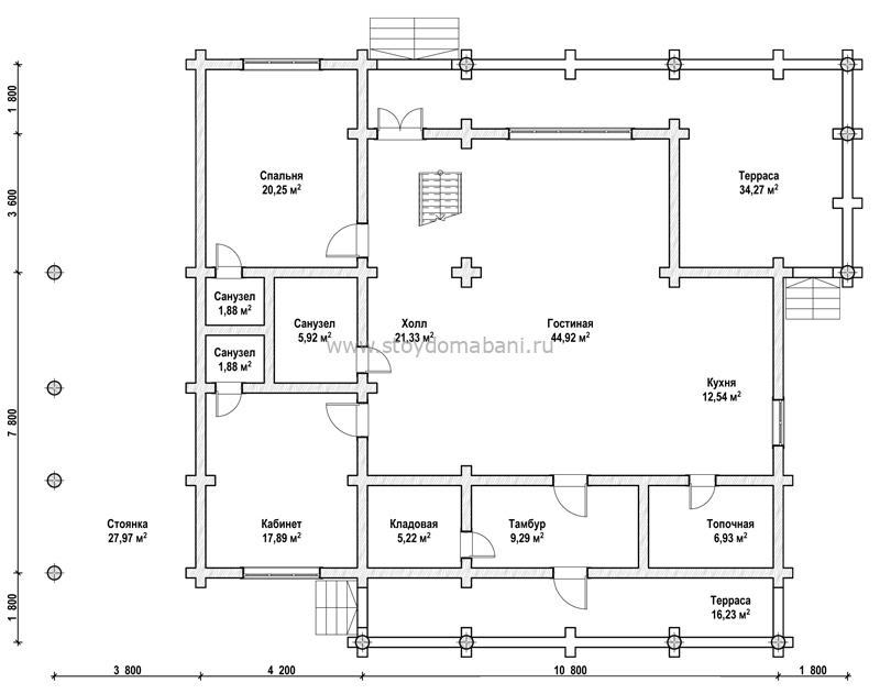
Дом RD-6 (15x20,6)

Детали

Размер дома
20.6 × 15 м
Площадь проекта
376 кв.м
Количество этажей
2
Стоимость проекта
34990 Р
Материал
Бревно рубленое

Рассчитать цену строительства дома

В стоимость строительства входит все, что нужно для изготовления фундамента, стен, перекрытий и кровли (кроме доставки комплекта стен на участок и обработки огне-био защитой).

Стены
2 431 050 Р
Монтаж стен
1 151 550 Р
Фундамент
255 000 Р
Кровля
400 000 Р

4 237 600 Р

    Отправляя свои данные, вы соглашаетесь на обработку персональных данных в соответствии с Политикой Конфиденциальности




      Отправляя свои данные, вы соглашаетесь на обработку персональных данных в соответствии с Политикой Конфиденциальности

      Остались вопросы?

      Свяжитесь с нами по телефонам:

      (8-800-707-17-16)

      (8-960-573-84-84)

      Или напишите на почту: