Поиск

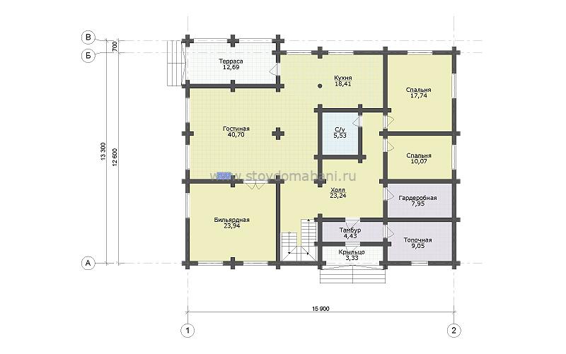
Дом RD-20 (13,3x15,9)

Детали

Размер дома
15.9 × 13.3 м
Площадь проекта
278 кв.м
Количество этажей
2
Стоимость проекта
34990 Р
Материал
Оцилиндрованное бревно

Рассчитать цену строительства дома

В стоимость строительства входит все, что нужно для изготовления фундамента, стен, перекрытий и кровли (кроме доставки комплекта стен на участок и обработки огне-био защитой).

Стены
1 503 000 Р
Монтаж стен
918 500 Р
Фундамент
223 500 Р
Кровля
360 000 Р

3 005 000 Р

    Отправляя свои данные, вы соглашаетесь на обработку персональных данных в соответствии с Политикой Конфиденциальности




      Отправляя свои данные, вы соглашаетесь на обработку персональных данных в соответствии с Политикой Конфиденциальности

      Остались вопросы?

      Свяжитесь с нами по телефонам:

      (8-800-707-17-16)

      (8-960-573-84-84)

      Или напишите на почту: