Поиск

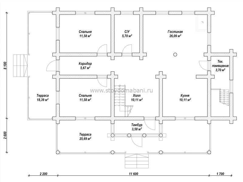
Дом RD-133 (10,7x15,5)

Детали

Размер дома
15.5 × 10.7 м
Площадь проекта
222 кв.м
Количество этажей
2
Стоимость проекта
29990 Р
Материал
Бревно рубленое

Рассчитать цену строительства дома

В стоимость строительства входит все, что нужно для изготовления фундамента, стен, перекрытий и кровли (кроме доставки комплекта стен на участок и обработки огне-био защитой).

Стены
1 738 500 Р
Монтаж стен
823 500 Р
Фундамент
198 000 Р
Кровля
270 000 Р

3 030 000 Р

    Отправляя свои данные, вы соглашаетесь на обработку персональных данных в соответствии с Политикой Конфиденциальности




      Отправляя свои данные, вы соглашаетесь на обработку персональных данных в соответствии с Политикой Конфиденциальности

      Остались вопросы?

      Свяжитесь с нами по телефонам:

      (8-800-707-17-16)

      (8-960-573-84-84)

      Или напишите на почту: