Поиск

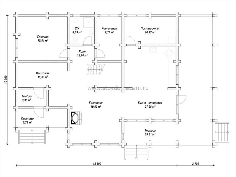
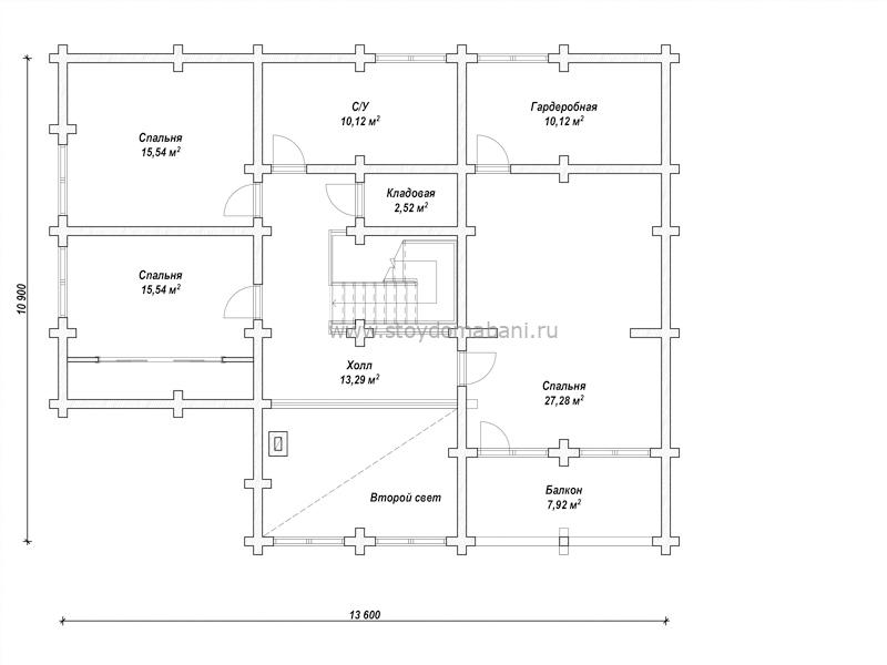
Дом RD-130 (16,7x10,9)

Детали

Размер дома
10.9 × 16.7 м
Площадь проекта
260 кв.м
Количество этажей
2
Стоимость проекта
29990 Р
Материал
Брус клееный

Рассчитать цену строительства дома

В стоимость строительства входит все, что нужно для изготовления фундамента, стен, перекрытий и кровли (кроме доставки комплекта стен на участок и обработки огне-био защитой).

Стены
3 473 000 Р
Монтаж стен
860 700 Р
Фундамент
199 500 Р
Кровля
294 000 Р

4 827 200 Р

    Отправляя свои данные, вы соглашаетесь на обработку персональных данных в соответствии с Политикой Конфиденциальности




      Отправляя свои данные, вы соглашаетесь на обработку персональных данных в соответствии с Политикой Конфиденциальности

      Остались вопросы?

      Свяжитесь с нами по телефонам:

      (8-800-707-17-16)

      (8-960-573-84-84)

      Или напишите на почту: