Поиск

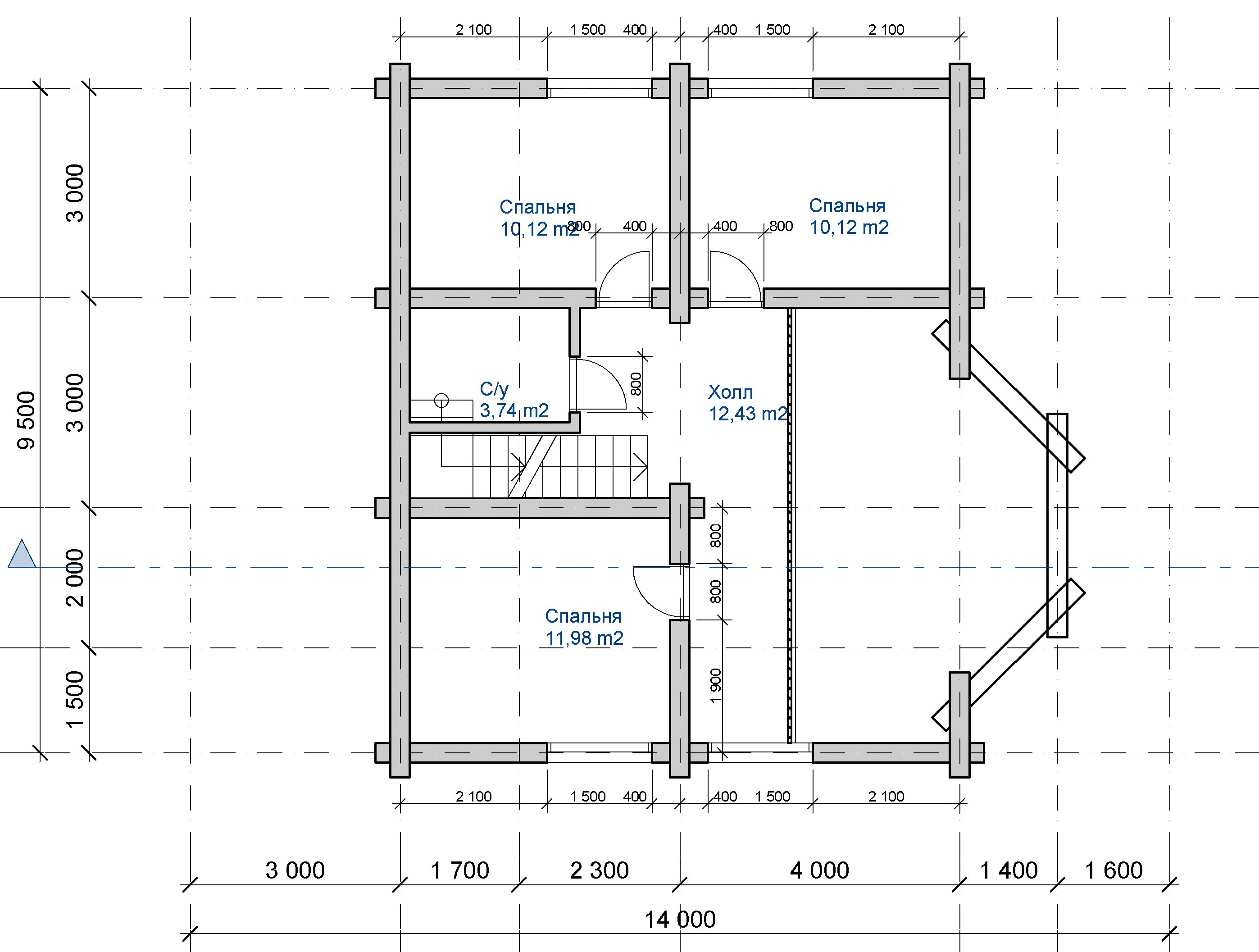
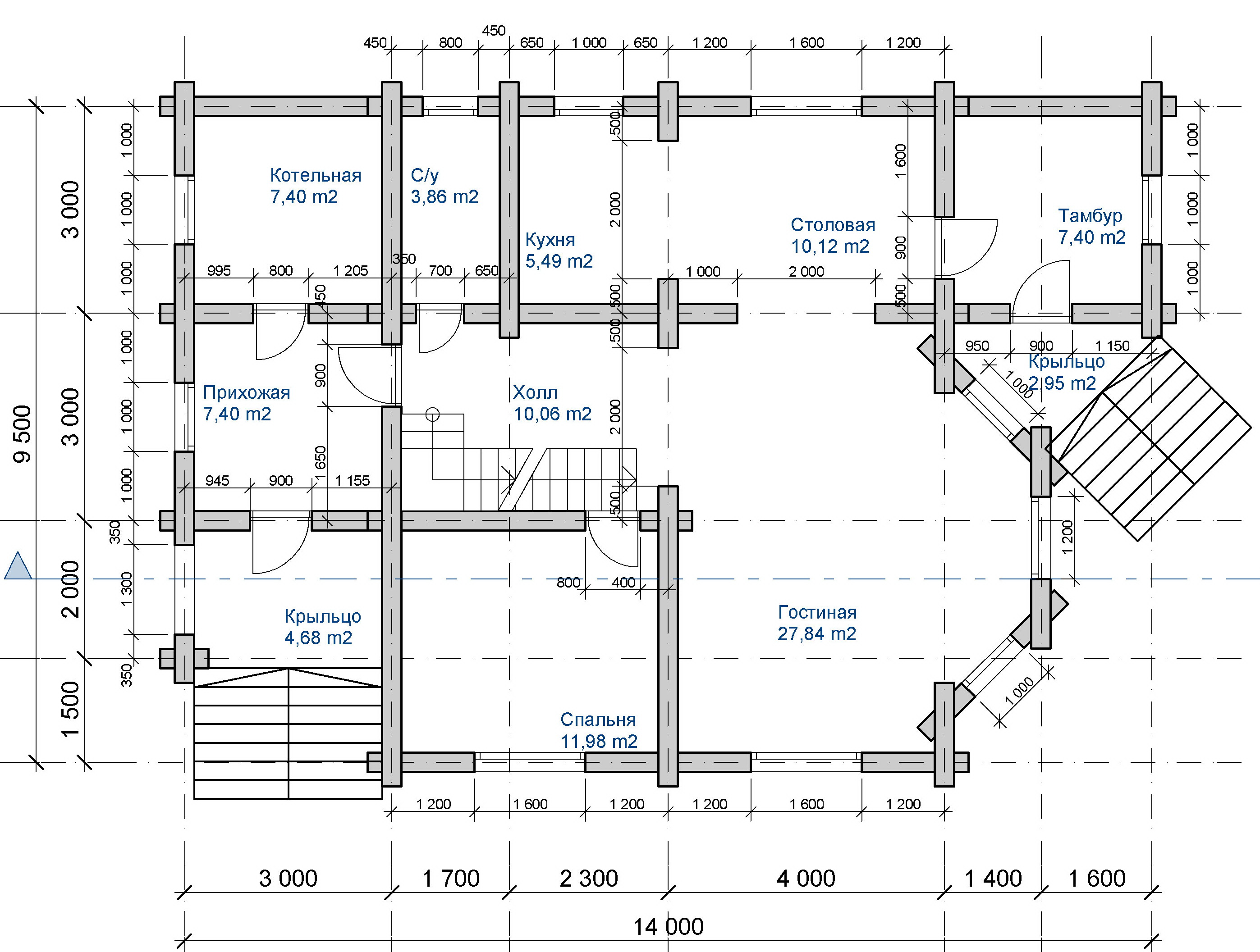
Дом RD-126 (9,5x14)

Детали

Размер дома
14 × 9.5 м
Площадь проекта
150 кв.м
Количество этажей
2
Стоимость проекта
24990 Р
Материал
Оцилиндрованное бревно

Рассчитать цену строительства дома

В стоимость строительства входит все, что нужно для изготовления фундамента, стен, перекрытий и кровли (кроме доставки комплекта стен на участок и обработки огне-био защитой).

Стены
923 337 Р
Монтаж стен
564 261 Р
Фундамент
142 500 Р
Кровля
195 000 Р

1 825 098 Р

    Отправляя свои данные, вы соглашаетесь на обработку персональных данных в соответствии с Политикой Конфиденциальности




      Отправляя свои данные, вы соглашаетесь на обработку персональных данных в соответствии с Политикой Конфиденциальности

      Остались вопросы?

      Свяжитесь с нами по телефонам:

      (8-800-707-17-16)

      (8-960-573-84-84)

      Или напишите на почту: