Поиск

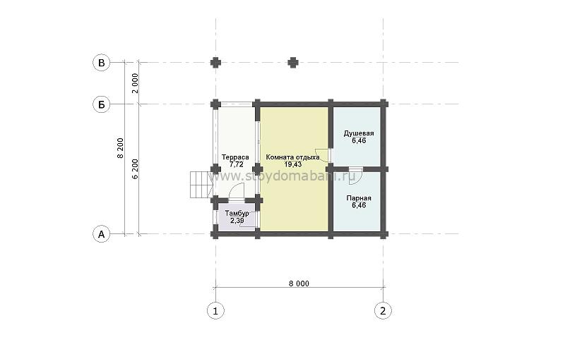
Баня RBM-14 (8,2x8)

Детали

Размер дома
8 × 8.2 м
Площадь проекта
43 кв.м
Количество этажей
1
Стоимость проекта
18300 Р
Материал
Оцилиндрованное бревно

Рассчитать цену строительства дома

В стоимость строительства входит все, что нужно для изготовления фундамента, стен, перекрытий и кровли (кроме доставки комплекта стен на участок и обработки огне-био защитой).

Стены
283 968 Р
Монтаж стен
173 536 Р
Фундамент
70 500 Р
Кровля
99 000 Р

627 004 Р

    Отправляя свои данные, вы соглашаетесь на обработку персональных данных в соответствии с Политикой Конфиденциальности




      Отправляя свои данные, вы соглашаетесь на обработку персональных данных в соответствии с Политикой Конфиденциальности

      Остались вопросы?

      Свяжитесь с нами по телефонам:

      (8-800-707-17-16)

      (8-960-573-84-84)

      Или напишите на почту: