Поиск

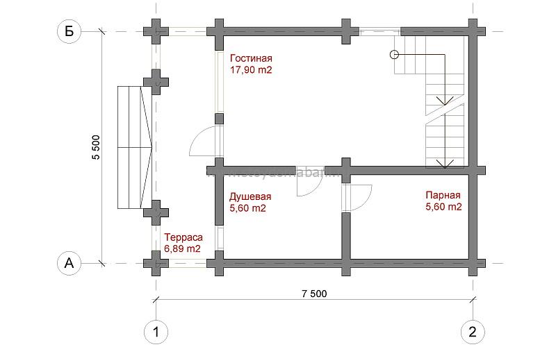
Баня C-38 (5,5x7,5)

Детали

Размер дома
7.5 × 5.5 м
Площадь проекта
70 кв.м
Количество этажей
2
Стоимость проекта
18300 Р
Материал
Оцилиндрованное бревно

Рассчитать цену строительства дома

В стоимость строительства входит все, что нужно для изготовления фундамента, стен, перекрытий и кровли (кроме доставки комплекта стен на участок и обработки огне-био защитой).

Стены
292 320 Р
Монтаж стен
178 640 Р
Фундамент
61 500 Р
Кровля
90 000 Р

622 460 Р

    Отправляя свои данные, вы соглашаетесь на обработку персональных данных в соответствии с Политикой Конфиденциальности




      Отправляя свои данные, вы соглашаетесь на обработку персональных данных в соответствии с Политикой Конфиденциальности

      Остались вопросы?

      Свяжитесь с нами по телефонам:

      (8-800-707-17-16)

      (8-960-573-84-84)

      Или напишите на почту: