Поиск

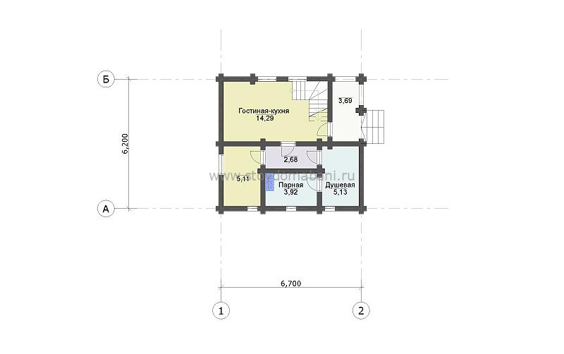
Баня C-29 (6,2x6,7)

Детали

Размер дома
6.7 × 6.2 м
Площадь проекта
75 кв.м
Количество этажей
2
Стоимость проекта
18300 Р
Материал
Оцилиндрованное бревно

Рассчитать цену строительства дома

В стоимость строительства входит все, что нужно для изготовления фундамента, стен, перекрытий и кровли (кроме доставки комплекта стен на участок и обработки огне-био защитой).

Стены
400 896 Р
Монтаж стен
244 992 Р
Фундамент
67 500 Р
Кровля
110 000 Р

823 388 Р

    Отправляя свои данные, вы соглашаетесь на обработку персональных данных в соответствии с Политикой Конфиденциальности




      Отправляя свои данные, вы соглашаетесь на обработку персональных данных в соответствии с Политикой Конфиденциальности

      Остались вопросы?

      Свяжитесь с нами по телефонам:

      (8-800-707-17-16)

      (8-960-573-84-84)

      Или напишите на почту: