Поиск

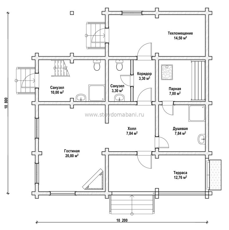
Баня B-5 (10,8x10,2)

Детали

Размер дома
10.2 × 10.8 м
Площадь проекта
123 кв.м
Количество этажей
2
Стоимость проекта
21440 Р
Материал
Брус клееный

Рассчитать цену строительства дома

В стоимость строительства входит все, что нужно для изготовления фундамента, стен, перекрытий и кровли (кроме доставки комплекта стен на участок и обработки огне-био защитой).

Стены
1 932 000 Р
Монтаж стен
478 800 Р
Фундамент
127 500 Р
Кровля
187 000 Р

2 725 300 Р

    Отправляя свои данные, вы соглашаетесь на обработку персональных данных в соответствии с Политикой Конфиденциальности




      Отправляя свои данные, вы соглашаетесь на обработку персональных данных в соответствии с Политикой Конфиденциальности

      Остались вопросы?

      Свяжитесь с нами по телефонам:

      (8-800-707-17-16)

      (8-960-573-84-84)

      Или напишите на почту: