Поиск

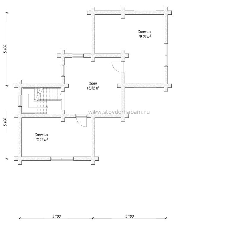
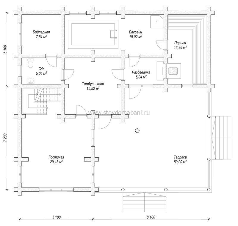
Баня B-24-3 (12,3x13,2)

Детали

Размер дома
13.2 × 12.3 м
Площадь проекта
192 кв.м
Количество этажей
2
Стоимость проекта
24990 Р
Материал
Бревно рубленое

Рассчитать цену строительства дома

В стоимость строительства входит все, что нужно для изготовления фундамента, стен, перекрытий и кровли (кроме доставки комплекта стен на участок и обработки огне-био защитой).

Стены
1 710 000 Р
Монтаж стен
810 000 Р
Фундамент
192 000 Р
Кровля
247 000 Р

2 959 000 Р

    Отправляя свои данные, вы соглашаетесь на обработку персональных данных в соответствии с Политикой Конфиденциальности




      Отправляя свои данные, вы соглашаетесь на обработку персональных данных в соответствии с Политикой Конфиденциальности

      Остались вопросы?

      Свяжитесь с нами по телефонам:

      (8-800-707-17-16)

      (8-960-573-84-84)

      Или напишите на почту: